第2期5次以降販売予定住戸
先着順販売住戸
販売価格
5,888万円(205号室)
先着順販売住戸
販売価格
5,788万円(105号室)
先着順販売住戸
販売価格
5,938万円(213号室)
先着順販売住戸
販売価格
6,018万円(507号室)
第2期5次以降販売予定住戸
先着順販売住戸
販売価格
5,658万円(310号室)
最上階
駐車場優先権付
先着順販売住戸
販売価格
8,288万円(1007号室)
第2期5次以降販売予定住戸
予定販売価格
※100万円単位
4,800万円台(211号室)
第2期5次以降販売予定住戸
予定販売価格
※100万円単位
6,300万円台(315号室)
NEW
先着順販売住戸
販売価格
4,988万円台(416号室)
第2期5次以降販売予定住戸
予定販売価格
※100万円単位
4,400万円台(217号室)
最上階
駐車場優先権付
第2期5次以降販売予定住戸
予定販売価格
※100万円単位
7,000万円台(811号室)
大型犬飼育可
先着順販売住戸
販売価格
4,648万円(113号室)
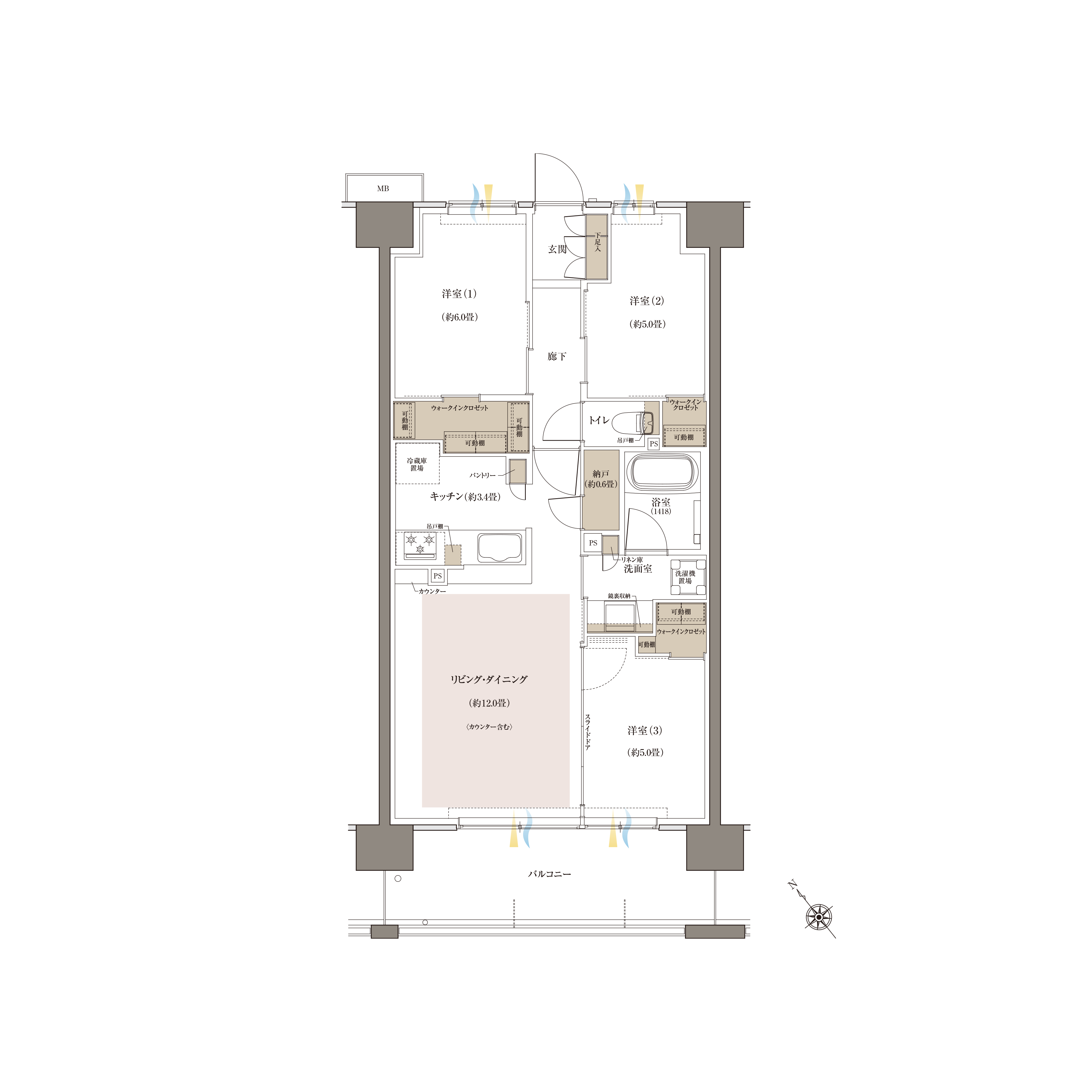
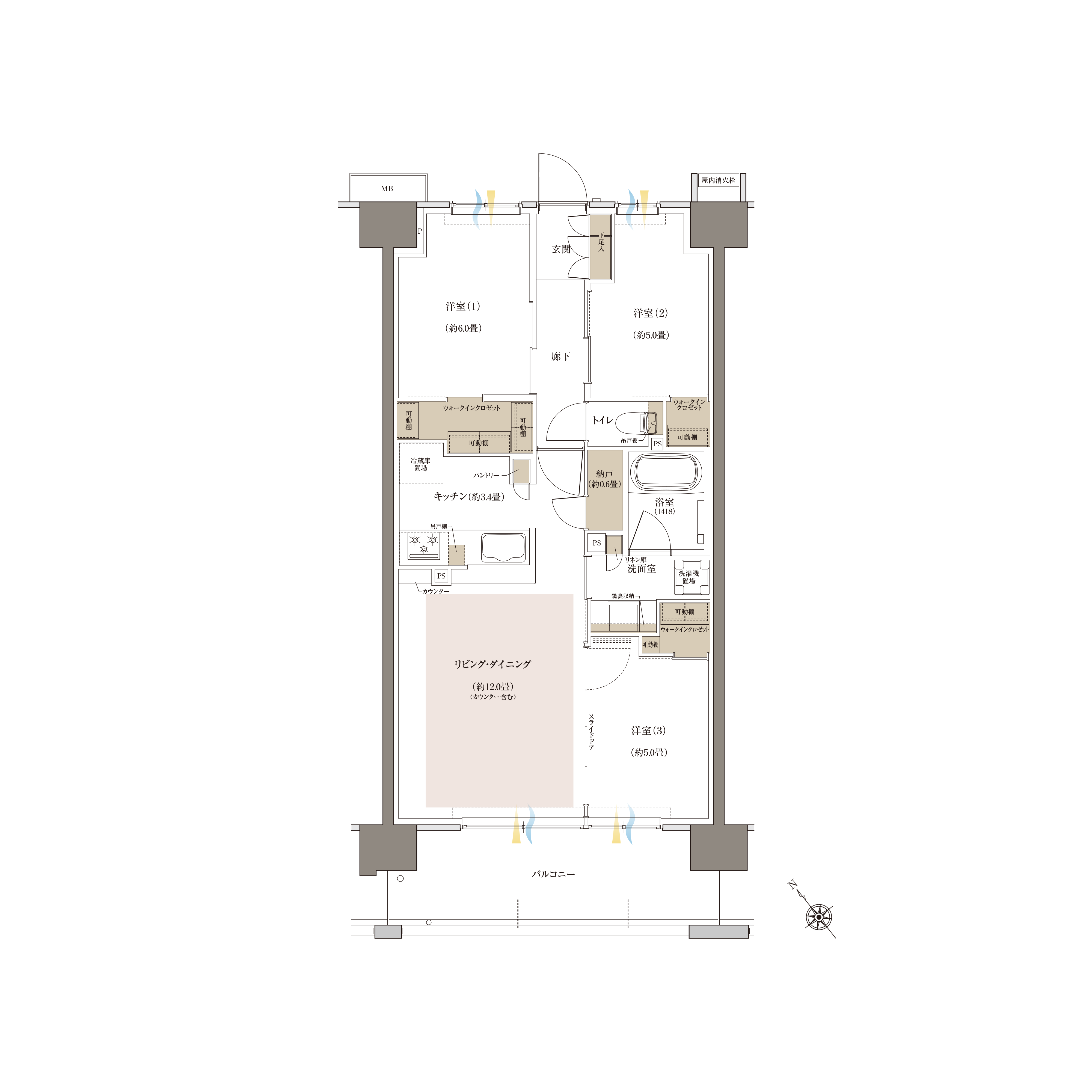
SIC=シューズインクロゼット WIC=ウォークインクロゼット N=納戸 S=サービスルーム
※掲載の間取図は設計段階の図面を基に描いたもので実際とは異なります。また施工上の理由および改良のため変更することがございます。最新の図面集でご確認ください。
上質な暮らしを叶える
こだわりの設え。
POINT 01
POINT 01
最大天井高約2.5mのゆとりと開放感※
空間のゆとりを感じられるように、リビング・ダイニングは天井高を約2.5mとしました。
※天井の高さは予定であり、施工上多少の差異があります。
※仕様・形状・機能・梁型等はタイプ等により異なる場合があります。詳細に関しては係員にお問い合わせください。
※B7w、B8r、G3rタイプは除きます。
POINT 02
すっきりとした空間を実現するアウトフレーム工法※
柱の出っ張りをなくし室内をすっきりとさせることで、家具等の配置もしやすく、スペースを有効に使うことができます。
※仕様・形状・機能・梁型等はタイプ等により異なる場合があります。詳細に関しては係員にお問い合わせください。
POINT 03
間取りの可変性を高めるスライドドア※
リビング・ダイニングと隣接する洋室との間仕切りにスライドドアを採用しました。ライフスタイルの変化に合わせて、空間を仕切って使うことができます。
※仕様・形状・機能・梁型等はタイプ等により異なる場合があります。詳細に関しては係員にお問い合わせください。
※C1、C1g、C2、C2gを除く。D2(9階)、D2r はスライドドア収納・開き形状が異なります。
POINT 04
空間が有効活用できる引き戸の洋室&洗面室※
開閉の際に扉が張り出さない引き戸を採用することでデッドスペースの少ない空間を実現します。
※掲載の間取図は、計画段階の図面を基に描き起こしたもので施工上の都合等により変更が生じる場合があります。最新の図面集でご確認ください。
※C1、C1g、C2、C2g、D1、D1g、D2、D2r、Hタイプは除きます。
POINT 05
家族のコミュニケーションを創造する対面キッチン
家族が集うリビング・ダイニングを見渡すことができる対面キッチンを採用しました。家族のコミュニケーションを創造するプランニングです。
POINT 06
住まいの中で屋外の開放感が味わえる
専用庭・ルーフバルコニー付き住戸※
アウトドアリビングとして愉しめる専用庭付き住戸やルーフバルコニー付き住戸をご用意。空の下でゆったりと寛げる開放的な日常を叶えます。
※専用庭・ルーフバルコニー付き住戸は一部の住戸に限ります。最新の図面集にてご確認ください。
住まいの中で屋外の開放感が味わえる
専用庭・ルーフバルコニー付き住戸※5
アウトドアリビングとして愉しめる専用庭付き住戸やルーフバルコニー付き住戸をご用意。空の下でゆったりと寛げる開放的な日常を叶えます。
※専用庭・ルーフバルコニー付き住戸は一部の住戸に限ります。最新の図面集にてご確認ください。
※掲載の「省エネ性能ラベル」は、住棟全体の性能を示すものであり、各住戸の性能を示すものではありません。
最大天井高約2.5mの
ゆとりと開放感
空間のゆとりを感じられるように
リビング・ダイニングは天井高を約2.5mとしました。
※天井の高さは予定であり、施工上多少の差異があります。
※仕様・形状・機能・梁型等はタイプ等により異なる場合があります。詳細に関しては係員にお問い合わせください。
※B7w、B8r、G3rタイプは除きます。
すっきりとした空間を実現する
アウトフレーム工法
柱の出っ張りをなくし室内をすっきりとさせることで、
家具等の配置もしやすく、スペースを有効に使うこと
ができます。
※仕様・形状・機能・梁型等はタイプ等により異なる場合があります。詳細に関しては係員にお問い合わせください。
間取りの可変性を高める
スライドドア
リビング・ダイニングと隣接する洋室との
間仕切りにスライドドアを採用しました。
ライフスタイルの変化に合わせて、
空間を仕切って使うことができます。
※仕様・形状・機能・梁型等はタイプ等により異なる場合があります。詳細に関しては係員にお問い合わせください。
※C1、C1g、C2、C2gを除く。D2(9階)、D2r はスライドドア収納・開き形状が異なる。
空間が有効活用できる
引き戸の洋室&洗面室
開閉の際に扉が張り出さない引き戸を採用することでデッドスペースの少ない空間を実現します。
※掲載の間取図は、計画段階の図面を基に描き起こしたもので施工上の都合等により変更が生じる場合があります。最新の図面集でご確認ください。
※C1、C1g、C2、C2g、D1、D1g、D2、D2r、Hタイプは除きます。
住まいの中で屋外の
開放感が味わえる
専用庭・ルーフバルコニー付き住戸
アウトドアリビングとして愉しめる専用庭付き住戸や
ルーフバルコニー付き住戸をご用意。
空の下でゆったりと寛げる開放的な日常を叶えます。
※専用庭・ルーフバルコニー付き住戸は一部の住戸に限ります。最新の図面集にてご確認ください。
開放感と家族の
コミュニケーションを
創造する
対面キッチン
家族が集うリビング・ダイニングを見渡すことができる対面キッチンを採用しました。
家族のコミュニケーションを創造するプランニングです。
※掲載の対面キッチン視野イメージ図は、計画段階の図面(C1タイプ)を基に描き起こしたもので施工上の都合等により変更が生じる場合があります。最新の図面集でご確認ください。
タクシーでの建設現地のご案内実施中!